愛知県安城市北山崎町西山(北安城駅)の貸その他:物件詳細
交通 所在地 |
駅徒歩 |
賃料 管理費等 |
敷金/保証金 礼金 |
使用部分面積 坪数/坪単価 |
物件種目 築年月 |
|
名鉄西尾線/北安城
愛知県安城市北山崎町西山
|
19分
|
77万円
33,000円
|
なし / 3ヶ月
1ヶ月
|
750.66m²
227.07坪/0.3391万円
|
貸工場
1967年1月(築59年2ヶ月)
|
|
間取図
|
外観
|
<
その他の画像
>
|
| 交通 | 名鉄西尾線 北安城駅 徒歩19分 |
|---|
| その他の交通 | 名鉄名古屋本線 宇頭駅 徒歩23分 東海道本線 安城駅 徒歩28分 |
| 所在地 |
愛知県安城市北山崎町西山
|
| 物件種目 |
貸工場 |
| 賃料 |
77万円 |
管理費等 |
33,000円 |
| 敷金 / 保証金 |
なし / 3ヶ月 |
礼金 |
1ヶ月 |
| 敷引 |
- |
坪単価 |
0.3391万円 |
| 保証金償却 |
- |
権利金 |
- |
| 造作譲渡 |
- |
その他一時金 |
- |
| 保険等 |
要 火災 |
|
|
| 使用部分面積 |
750.66m² |
坪数 |
227.07坪 |
| 築年月 |
1967年1月(築59年2ヶ月)
|
階建 / 階 |
1階建 / 1階 |
| 駐車場 |
有 無料(空き10台) 北西側敷地内約10台以上 |
バイク置き場 |
- |
| 駐輪場 |
- |
土地面積 |
- |
| 接道状況 |
-
|
用途地域 |
- |
| 間取り |
- |
建物構造 |
鉄骨造 |
| アピールポイント |
【SMILE不動産】北山崎町西山 3棟一括の約227坪の大型倉庫・工場物件です!
敷地内に駐車場10台以上あり!ホイスト・キュービクル有
2026年3月上旬入居可能予定!お気軽にお問い合わせください!
テナント専門不動産会社【 SMILE不動産 】にお任せください!!
店舗・事務所・倉庫・工場・土地 等の事業用物件を専門に取扱っております!!
初めての店舗探しで不安だな...
何を聞いたらいいか分からない...
移転先がなかなか見つからない...
事業拡大したいが良い物件がない... etc.
なんでもお気軽にご相談ください!!専門業者ならではの知識や経験で物件をご紹介いたします!!
ご希望いただいた方には「物件動画」をお送りいたしますのでお気軽にお申し付けください!
忙しくてなかなかスケジュールが合わない... 遠方ですぐには行けない...
そんな方は物件動画で是非ご検討ください☆
すぐに内覧可能な物件も多数ございます!!
お問合せお待ちしております☆ |
| 建物名・部屋番号 |
北山崎町西山工場 3棟 |
| リフォーム履歴 |
- |
| リノベーション履歴 |
- |
| 特記事項 |
土曜日利用可、土日・祝日利用可、大型トラック搬入可、飲食店不可、天井高2.5M以上、IT重説対応物件 |
| 備考 |
賃貸保証等:加入要(保証会社初回保証料:月額総賃料の100%)
管理形態/管理員の勤務形態:-/-
IT重説対応物件
■ 2024年11月18日 撮影
■ 「物件動画」もございます☆ご希望の方はお申し付けください!!
■ 北山崎町西山 県道286号線からすぐ近く!アクセス良好!
■ 大型の倉庫・工場物件!約227坪ございます!
■ 北西側敷地内に駐車場10台以上あり!
■ 3棟一括で募集中!分割貸しは要相談
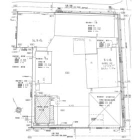
■ 北工場 409.50㎡(約123.87坪)昭和42年築
■ 東工場 204.82㎡(約61.96坪)昭和63年築
■ 西工場 136.34㎡(約41.24坪)昭和51年築
■ 水道・浄化槽管理料は共益費に含まれます(業種によっては共益費の増額有)
■ 北工場と東工場の間に軒及びサービススペース有
■ ホイスト・キュービクルございます
■ 用途地域:市街化調整区域
■ 2026年3月上旬入居可能!業種・使用用途・条件等ご相談ください!
|
| エネルギー消費性能 |
- |
| 断熱性能 |
- |
| 目安光熱費 |
- |
| バス・トイレ |
トイレ |
| キッチン |
- |
| 設備・サービス |
- |
| その他 |
クレーン |
| 契約期間 |
3年 |
条件等 |
- |
| 引渡可能時期 |
2026年3月上旬予定 |
現況 |
使用中 |
| 仲介手数料 |
1ヶ月 |
|
|
| 更新料 |
- |
物件番号 |
6988810325 |
| 情報公開日 |
2026年1月23日 |
次回更新予定日 |
2026年2月6日 |
| ケータイ用バーコード |
- スマートフォンでこの物件を見る
- スマートフォンからもこの物件をご覧になれます。
|
※「-」と表示されている項目については、情報提供会社にご確認ください。
| 周辺施設 |
セブンイレブン安城新田町店 |
| 距離 |
603m |
| 周辺施設 |
ホリデイゴルフガーデン新田店 |
| 距離 |
1410m |
ここから簡単にお問い合わせをすることができます。
(SSLでの暗号化での送信を希望されるお客さまは
こちら
よりお問い合わせください)
お問い合わせを行う前に
「個人情報の取り扱いについて」を必ずお読みください。
「個人情報の取り扱いについて」に同意いただいた場合は「上記にご同意の上 確認画面へ進む」のボタンをクリックしてください。
個人情報の取り扱いについて
皆さまが送付された個人情報はアットホーム(株)のサーバを経由し、お問い合わせ先の不動産会社にメールまたはFAXにて転送されるためアットホーム(株)にも保管されます。アットホーム(株)で保管された個人情報の取り扱いについては、【こちら】をご覧ください。
また、本画面でご記入いただいた個人情報は、お問い合わせ先の不動産会社でも保管します。 お問い合わせ先の不動産会社が保管する個人情報の取り扱いについては、不動産会社に直接お問い合わせください。
愛知県知事免許(1)第25327号 |
|---|
- 交通:
- 名鉄名古屋本線/東岡崎駅
- 愛知県岡崎市上六名2丁目8番地5
- TEL:
- 0564-47-7288
- FAX:
- 0564-47-7289
- 所属団体:
- (公社)全日本不動産協会会員東海不動産公正取引協議会加盟
取引態様:仲介  - 40412726
|
- スマートフォンで
この不動産会社を見る

|
- 提携サイト等より掲載されている物件情報につきましては、不動産会社詳細情報にリンクされていないものがあります。
- 物件に関するお問合せは、物件詳細ページの「情報提供会社」に表示されている不動産会社へ直接お願いいたします。
- 間取図は、現況を優先させていただきます。
- 映像は物件の一部を撮影したものです。物件の契約にあたっての最終判断はご自身の判断に基づいて行ってください。
- 仲介手数料について

アットホームは物件情報の適正化に努めております。
内容に誤りがある場合にはこちらへご連絡ください。