大阪府大阪市住吉区長居4丁目(長居駅)の貸その他:物件詳細
交通 所在地 |
駅徒歩 |
賃料 管理費等 |
敷金/保証金 礼金 |
使用部分面積 坪数/坪単価 |
物件種目 築年月 |
|
JR阪和線/長居
大阪府大阪市住吉区長居4丁目
|
6分
|
55万円
なし
|
4ヶ月 / なし
2.2ヶ月
|
205.62m²
62.19坪/0.8843万円
|
貸倉庫
2021年3月(築5年1ヶ月)
|
|
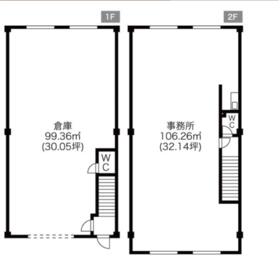
間取図
|
|
<
その他の画像
>
|
| 交通 | JR阪和線 長居駅 徒歩6分 |
|---|
| その他の交通 | 地下鉄御堂筋線 長居駅 徒歩8分 JR阪和線 我孫子町駅 徒歩11分 |
| 所在地 |
大阪府大阪市住吉区長居4丁目
|
| 物件種目 |
貸倉庫 |
| 賃料 |
55万円 |
管理費等 |
なし |
| 敷金 / 保証金 |
4ヶ月 / なし |
礼金 |
2.2ヶ月 |
| 敷引 |
- |
坪単価 |
0.8843万円 |
| 保証金償却 |
- |
権利金 |
- |
| 造作譲渡 |
- |
その他一時金 |
- |
| 保険等 |
要 火災 |
|
|
| 使用部分面積 |
205.62m² |
坪数 |
62.19坪 |
| 築年月 |
2021年3月(築5年1ヶ月)
|
階建 / 階 |
2階建 / 1階 |
| 駐車場 |
有 無料(空き6台) 車種により台数変わります。 |
バイク置き場 |
- |
| 駐輪場 |
- |
土地面積 |
- |
| 接道状況 |
-
|
用途地域 |
- |
| 間取り |
- |
建物構造 |
鉄骨造 |
| アピールポイント |
〇長居駅より徒歩約6分
〇1階面積:30.05坪
〇2階面積:32.14坪
〇前面空地付き |
| 建物名・部屋番号 |
長居4丁目 事務所付き倉庫 駐車場約6台付き 3 |
| リフォーム履歴 |
- |
| リノベーション履歴 |
- |
| 特記事項 |
土曜日利用可、土日・祝日利用可、OAフロア、飲食店不可、駐車場3台分以上、天井高2.5M以上 |
| 備考 |
賃貸保証等:加入要(指定有)
管理形態/管理員の勤務形態:-/-
※天井高 1階:3,420mm 2階:2,600mm
電動シャッターサイズ W:3,000mm H:2,700mm
|
| エネルギー消費性能 |
- |
| 断熱性能 |
- |
| 目安光熱費 |
- |
| バス・トイレ |
トイレ2ヶ所、トイレ |
| キッチン |
- |
| 設備・サービス |
電動シャッター、ビルトインエアコン、エアコン、暖房、冷房、光ファイバー |
| その他 |
荷積みスペース、車寄せスペース |
| 契約期間 |
2年 |
条件等 |
- |
| 引渡可能時期 |
2026年7月下旬予定 |
現況 |
使用中 |
| 仲介手数料 |
1ヶ月 |
|
|
| 更新料 |
- |
物件番号 |
6989775470 |
| 情報公開日 |
2026年3月5日 |
次回更新予定日 |
2026年4月2日 |
| ケータイ用バーコード |
- スマートフォンでこの物件を見る
- スマートフォンからもこの物件をご覧になれます。
|
※「-」と表示されている項目については、情報提供会社にご確認ください。
| 周辺施設 |
関西スーパー長居店 |
| 距離 |
230m |
写真を見る |
| 周辺施設 |
ファミリーマート長居西二丁目店 |
| 距離 |
295m |
写真を見る |
| 周辺施設 |
大阪王将長居店 |
| 距離 |
345m |
写真を見る |
| 周辺施設 |
医療法人錦秀会阪和記念病院 |
| 距離 |
994m |
写真を見る |
| 周辺施設 |
住吉長居四郵便局 |
| 距離 |
197m |
写真を見る |
| 周辺施設 |
池田泉州銀行長居支店 |
| 距離 |
470m |
写真を見る |
| 周辺施設 |
大阪市住吉区役所 |
| 距離 |
1272m |
写真を見る |
ここから簡単にお問い合わせをすることができます。
(SSLでの暗号化での送信を希望されるお客さまは
こちら
よりお問い合わせください)
お問い合わせを行う前に
「個人情報の取り扱いについて」を必ずお読みください。
「個人情報の取り扱いについて」に同意いただいた場合は「上記にご同意の上 確認画面へ進む」のボタンをクリックしてください。
個人情報の取り扱いについて
皆さまが送付された個人情報はアットホーム(株)のサーバを経由し、お問い合わせ先の不動産会社にメールまたはFAXにて転送されるためアットホーム(株)にも保管されます。アットホーム(株)で保管された個人情報の取り扱いについては、【こちら】をご覧ください。
また、本画面でご記入いただいた個人情報は、お問い合わせ先の不動産会社でも保管します。 お問い合わせ先の不動産会社が保管する個人情報の取り扱いについては、不動産会社に直接お問い合わせください。
大阪府知事免許(2)第60093号 |
|---|
- 交通:
- JR阪和線/堺市駅 徒歩3分
- 大阪府堺市北区北長尾町3丁5-4-201
- TEL:
- 072-260-4613
- FAX:
- 072-260-4612
- 所属団体:
- (公社)全日本不動産協会会員(公社)近畿地区不動産公正取引協議会加盟
取引態様:仲介  - 50102737
|
- スマートフォンで
この不動産会社を見る

|
- 提携サイト等より掲載されている物件情報につきましては、不動産会社詳細情報にリンクされていないものがあります。
- 物件に関するお問合せは、物件詳細ページの「情報提供会社」に表示されている不動産会社へ直接お願いいたします。
- 間取図は、現況を優先させていただきます。
- 映像は物件の一部を撮影したものです。物件の契約にあたっての最終判断はご自身の判断に基づいて行ってください。
- 仲介手数料について

アットホームは物件情報の適正化に努めております。
内容に誤りがある場合にはこちらへご連絡ください。