神奈川県海老名市本郷(門沢橋駅)の貸その他:物件詳細
交通 所在地 |
駅徒歩 |
賃料 管理費等 |
敷金/保証金 礼金 |
使用部分面積 坪数/坪単価 |
物件種目 築年月 |
|
JR相模線/門沢橋
神奈川県海老名市本郷
|
19分
|
99万円
11,110円
|
4ヶ月 / なし
1ヶ月
|
480.00m²
145.19坪/0.6819万円
|
貸倉庫
2000年3月(築26年1ヶ月)
|
|
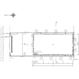
間取図
使い勝手良好な平屋建て倉庫です。
|
外観
立面図です。
|
その他の画像
|
| 交通 | JR相模線 門沢橋駅 徒歩19分 |
|---|
| その他の交通 | 小田急小田原線 海老名駅 徒歩6400m |
| 所在地 |
神奈川県海老名市本郷
|
| 物件種目 |
貸倉庫 |
| 賃料 |
99万円 |
管理費等 |
11,110円 |
| 敷金 / 保証金 |
4ヶ月 / なし |
礼金 |
1ヶ月 |
| 敷引 |
- |
坪単価 |
0.6819万円 |
| 保証金償却 |
- |
権利金 |
- |
| 造作譲渡 |
- |
その他一時金 |
- |
| 保険等 |
- |
|
|
| 使用部分面積 |
480.00m² |
坪数 |
145.19坪 |
| 築年月 |
2000年3月(築26年1ヶ月)
|
階建 / 階 |
1階建 / 1階 |
| 駐車場 |
有 無料 |
バイク置き場 |
有 無料 |
| 駐輪場 |
有 無料 |
土地面積 |
887.58m²(公簿) |
| 接道状況 |
-
|
用途地域 |
工業地域 |
| 間取り |
- |
建物構造 |
鉄骨造 |
| アピールポイント |
大人気エリア海老名市の平屋建貸倉庫です。
工業地域の為、用途の幅もございます。
敷地内駐車場あり、トイレありです。
海老名駅まで6.8km、便利な海老名ICまで5.1km
最寄りは厚木南ICで3.7kmと好立地です。
★非常に人気エリアの為、ご検討いただける方は早めに見学希望だけでもご相談ください★
(電話、ライン、メール問い合わせをご用意しております)
空き確認や見学希望、各種お問合せ、物件探しの依頼は電話でも承っております。
お電話の場合は03-6820-6462または046-212-2988(担当直通)までお気軽にご連絡ください。
当社は事業用不動産専門店として、関東全域と静岡県の物件を取り扱っております。
物件のお探しもご相談ください。
ご条件をお伺いして、物件情報をご提供させていただきます。
丁寧に一生懸命対応させていただきます。
是非、なんでもお気軽にご相談ください。 |
| 建物名・部屋番号 |
|
| リフォーム履歴 |
- |
| リノベーション履歴 |
- |
| 特記事項 |
土曜日利用可、土日・祝日利用可、1フロア1テナント |
| 備考 |
管理形態/管理員の勤務形態:-/-
・現況優先
・敷金(保証金)償却:1ヶ月
・保証会社:原則要加入
・業種:要相談
|
| エネルギー消費性能 |
- |
| 断熱性能 |
- |
| 目安光熱費 |
- |
| バス・トイレ |
トイレ |
| キッチン |
- |
| 設備・サービス |
- |
| その他 |
- |
| 契約期間 |
2年 |
条件等 |
定期借家 |
| 引渡可能時期 |
指定有り2026年5月1日 |
現況 |
居住中 |
| 仲介手数料 |
1ヶ月 |
|
|
| 更新料 |
なし |
物件番号 |
6989981151 |
| 情報公開日 |
2026年3月19日 |
次回更新予定日 |
2026年4月2日 |
| ケータイ用バーコード |
- スマートフォンでこの物件を見る
- スマートフォンからもこの物件をご覧になれます。
|
※「-」と表示されている項目については、情報提供会社にご確認ください。
ここから簡単にお問い合わせをすることができます。
(SSLでの暗号化での送信を希望されるお客さまは
こちら
よりお問い合わせください)
お問い合わせを行う前に
「個人情報の取り扱いについて」を必ずお読みください。
「個人情報の取り扱いについて」に同意いただいた場合は「上記にご同意の上 確認画面へ進む」のボタンをクリックしてください。
個人情報の取り扱いについて
皆さまが送付された個人情報はアットホーム(株)のサーバを経由し、お問い合わせ先の不動産会社にメールまたはFAXにて転送されるためアットホーム(株)にも保管されます。アットホーム(株)で保管された個人情報の取り扱いについては、【こちら】をご覧ください。
また、本画面でご記入いただいた個人情報は、お問い合わせ先の不動産会社でも保管します。 お問い合わせ先の不動産会社が保管する個人情報の取り扱いについては、不動産会社に直接お問い合わせください。
東京都知事免許(2)第102028号 |
|---|
- 交通:
- 東京メトロ日比谷線/人形町駅 徒歩5分
- 東京都中央区日本橋人形町3丁目3-5
- TEL:
- 03-6820-6462
- 所属団体:
- (公社)全日本不動産協会会員(公社)首都圏不動産公正取引協議会加盟
取引態様:仲介  - 00281148
|
- スマートフォンで
この不動産会社を見る

|
- 提携サイト等より掲載されている物件情報につきましては、不動産会社詳細情報にリンクされていないものがあります。
- 物件に関するお問合せは、物件詳細ページの「情報提供会社」に表示されている不動産会社へ直接お願いいたします。
- 間取図は、現況を優先させていただきます。
- 映像は物件の一部を撮影したものです。物件の契約にあたっての最終判断はご自身の判断に基づいて行ってください。
- 仲介手数料について

アットホームは物件情報の適正化に努めております。
内容に誤りがある場合にはこちらへご連絡ください。